W64

BÜROGEBÄUDE
DEUTSCHER BUNDESTAG

Berlin-Mitte, Wilhelmstraße

Wilhelmstrasse

 

chronologisch thematisch
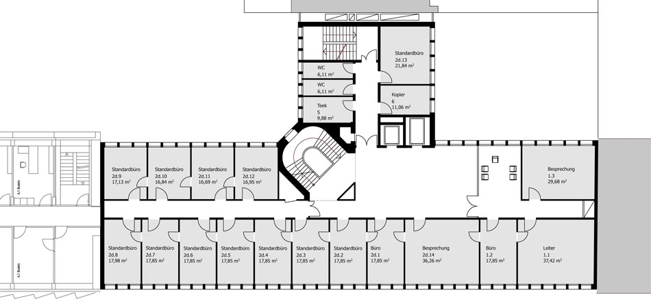
Grundsanierung und Aufstockung eines gründerzeitlichen Hotels als Bürogebäude für Abgeordnete des Deutschen Bundestages.
Freiraumplanung: Projektbüro Stadtlandschaft

BauNetz: 26.07.2018 Historische Transformationen Bundestagsbüros in Berlin von AVP - zum Artikel

german-architects 14.08.2018 Historismus wiederentdeckt - zum Artikel


Planung:

2011

NF:

2.253 m2
Fertigstellung: 2017 BGF: 5.123 m2
LP: Wettbewerb; LP 2-8 BRI: 19.144 m3