F 10

BÜRO- UND GEWERBEHOF F10


Berlin-Friedrichshain

 

chronologisch thematisch

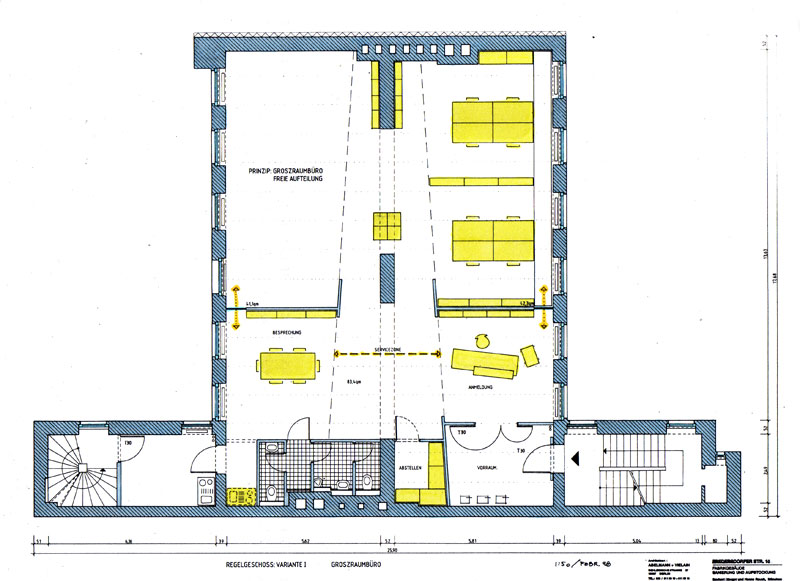
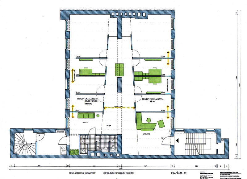
Umnutzung und Sanierung einer ehemaligen Etagenfabrik zum Bürogebäude


Planung:

1994

NF:

1400 m2
Fertigstellung: 1998    
LP: 1-9