logoAKTUELLES 2022

 

HUM - MULTIFUNKTIONSGEBÄUDE MIT MENSA, SPORTHALLE, VERANSTALTUNGSBEREICH IN POTSDAM - Juli 2022

Der Bauantrag ist eingereicht; es beginnt die Ausführungsplanung des Hybridgebäudes…

Auszug aus dem Erläuterungstext:

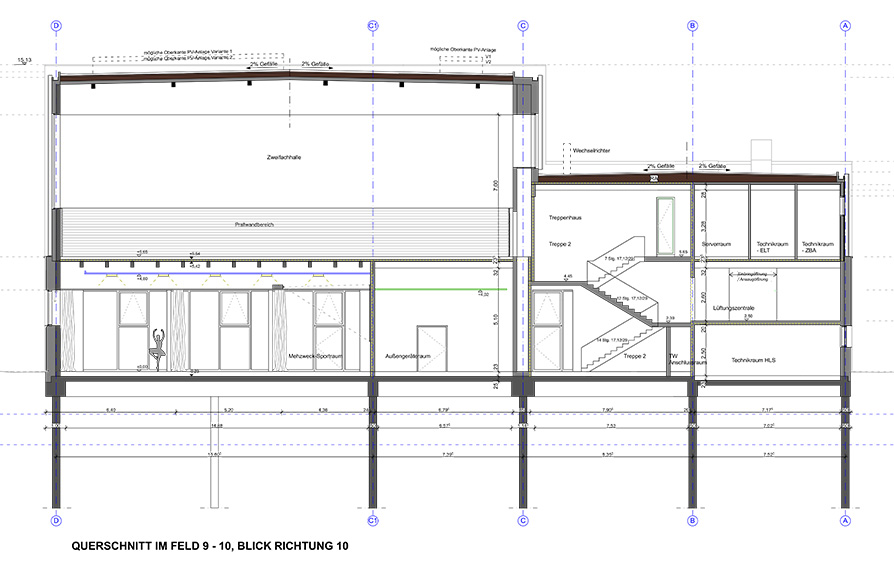
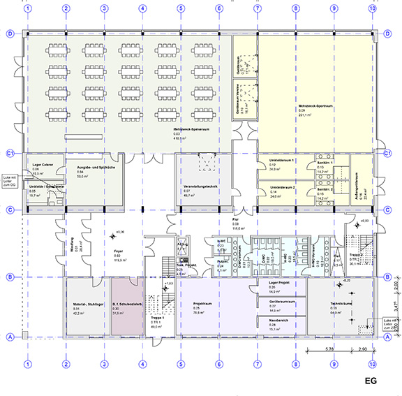
Das Gebäude leistet - auch entsprechend der Nachhaltigkeitsziele der Landeshauptstadt Potsdam bzw. des KIS - einen deutlichen Beitrag zur ressourcensparenden Bauweise, sowohl in der Erstellung wie auch im Betrieb. Der gesamte Baukörper ist überwiegend in vorgefertigter Holzbauweise geplant; dies gilt für die tragenden / aussteifenden wie auch für die raumtrennenden Bauteile. Ausgenommen hiervon sind wenige Bauteile aus Beton / Stahlbeton wie die Gründung mit Bodenplatte und Pfählen, die speicherfähige Innenwand im EG (Achse C1) und der Aufzugsschacht. Die Decken werden als Holz-Beton-Verbunddecken ausgeführt. Die technische Ausstattung erfolgt nach neuestem Standard mit moderner Steuerungstechnik mit dem Ziel, den späteren, im Betrieb erforderlichen Energieeinsatz zu minimieren. Zusätzlich werden die Möglichkeiten der natürlichen Belüftung sowie der Belichtung mit Tageslicht optimiert, um die Betriebszeiten der technischen Anlagen und die damit verbundenen Energieaufwände zu reduzieren.

 

  • hum
  • hum
  • hum
  • hum
  • hum
  • hum

 

IMO - LVR INDUSTRIEMUSEUM OBERHAUSEN- Juli 2022

Die Demontagearbeiten sind abgeschlossen. Zur Zeit wird die Grundplatte mit ihren vielen integrierten technischen Kanälen erneuert.
Zeitgleich werden noch einige Großobjekte der Ausstellung vorsichtig von Spezialisten zerlegt und am neuen Ort wieder aufgebaut.

Blogbeitrag: https://zinkfabrikaltenberg.blog/2022/07/25/nach-ausen-ein-neues-zeichen/

 

  • imo
  • imo
  • imo
  • imo
  • imo
  • imo
  • imo

 

NFZ 3H - FORSCHUNGSZENTRUM DER UNI COTTBUS- Juni 2022

Die Fertigstellung / Inbetriebnahme des neuen Hochschulgebäudes mit Seminarräumen und einer großen Forschungshalle steht kurz bevor.
Letzte technische Messungen und Justierungen, sowie die Beseitigung kleinerer Mängel sind bald abgeschlossen.

Fotograf: Maro Niemann

  • nfz3h
  • nfz3h
  • nfz3h
  • nfz3h
  • nfz3h
  • nfz3h
  • nfz3h
  • nfz3h

 

BAUKULTUR VOR ORT- Mai 2022

Das erste Gespräch der Reihe „Baukultur vor Ort“ — gemeinsam veranstaltet von der Architektenkammer und der Ingenieurkammer Brandenburg — fand in dem mit dem Brandenburgischen Baukulturpreis ausgezeichneten Amtsgericht Königs Wusterhausen statt.

Reihe „Baukultur vor Ort“ startet im Amtsgericht Königs Wusterhausen - PDF öffnen (1,9 MB)

Baukultur Amtsgericht Königs Wusterhausen | Ministerium für Infrastruktur und Landesplanung Brandenburg - PDF öffnen (107 KB)

Baukultur vor Ort Baukultur vor Ort Baukultur vor Ort Baukultur vor Ort
Baukultur vor Ort Baukultur vor Ort Baukultur vor Ort Baukultur vor Ort
Baukultur vor Ort Baukultur vor Ort Baukultur vor Ort Baukultur vor Ort
Baukultur vor Ort



 

2 KAPELLEN FÜR KW- März 2022

avp gewinnt den 2. Kapellenwettbewerb in Königs Wusterhausen. Die Beauftragung erfolgt im März 2022.

Die Kapellen fügen sich jeweils in den Ort (Friedhof) ein und prägen diesen gleichzeitig auf unterschiedliche Weise. Das Zentrum/der Andachtsraum beider Kapellen ist so konzipiert, dass die Abschiedszeremonie auf individuelle Weise gestaltet werden kann.


KAPELLE 1

Kapellenwettbewerb in Königs Wusterhausen Kapellenwettbewerb in Königs Wusterhausen Kapellenwettbewerb in Königs Wusterhausen Kapellenwettbewerb in Königs Wusterhausen Kapellenwettbewerb in Königs Wusterhausen


KAPELLE 2

Kapellenwettbewerb in Königs Wusterhausen Kapellenwettbewerb in Königs Wusterhausen Kapellenwettbewerb in Königs Wusterhausen Kapellenwettbewerb in Königs Wusterhausen Kapellenwettbewerb in Königs Wusterhausen Kapellenwettbewerb in Königs Wusterhausen


DAS ALTE RATHAUS EBERSWALDE - Januar 2022

Zum Artikel der Märkischen Oderzeitung - PDF öffnen, (1,2MB)